Download Heartland Homes Kitset PNG

Find your new single wide or double wide manufactured and modular homes built to suit with heartland homes in kentucky, southern indiana, & southern ohio.

Download Heartland Homes Kitset PNG. With a heartland kit home we provide a complete set of building plans compliant to the nz building code and the major materials required for the construction of your home. Alibaba.com offers 37,188 kit set homes products.

Homes under $200k - Just ask us how! Transportable Homes ...
Homes under $200k - Just ask us how! Transportable Homes ... from i.pinimg.com
Find quilting kits, templates, patterns and tools designed by tv star and master quilter sharlene jorgenson that make your projects quick, fun and easy. You can build these yourself if you are reasonably handy, and able to lift heavy pieces of timber. About 0% of these are prefab houses.

Did you mean the neighborhood heartland?

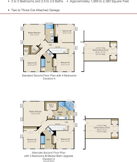
Heartland america | free shipping on the best … Heartland america | free shipping on the best … A hidden gem with an array of everything's included® homes. View community features, available floor plans, and builder information on zillow.com.